Daheim in seiner besten Lage

Das eigene Haus im Grünen mit viel Platz für Familie und Freizeit bietet das neue Wohngebiet „Hagener Straße“ in Weyhe - Leeste.

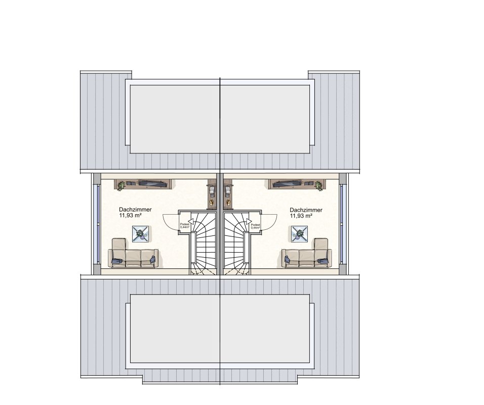
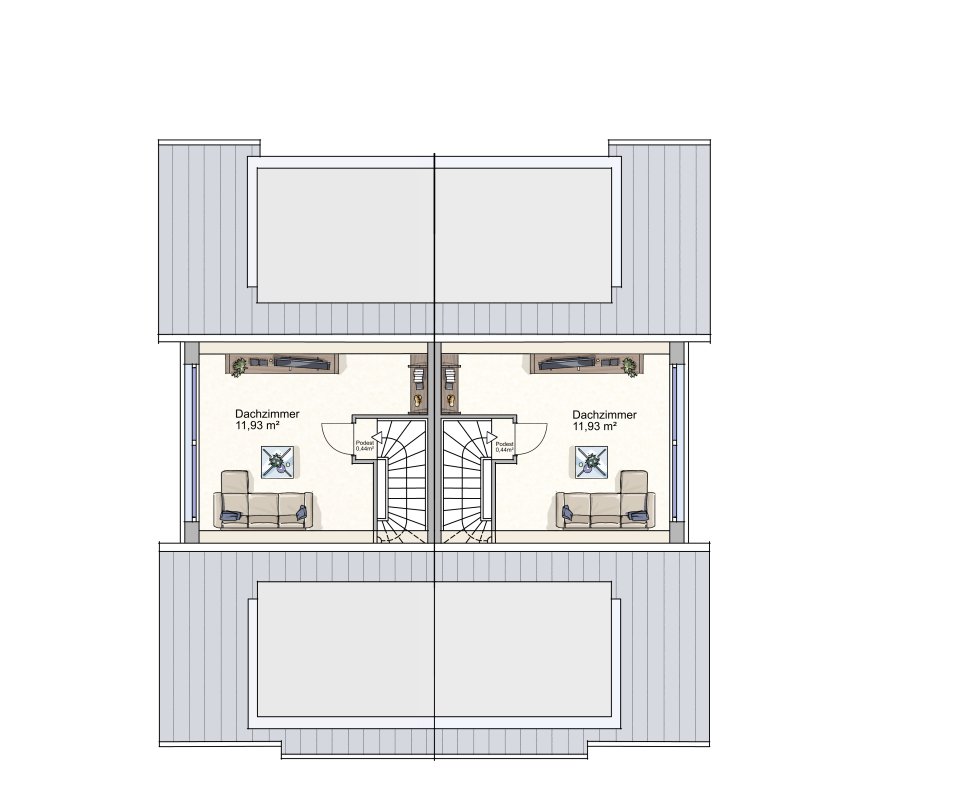
Hier in der Wacholderstraße entsteht ein Doppelhaus mit hervorragender Ausstattung und 128 qm Wohnfläche je Haushälfte. Das Wohngebäude fügt sich harmonisch in die Idylle der gewachsenen Umgebung ein.

5 Zimmer: Die Grundrisse der Häuser orientieren sich an den Lebensbedürfnissen moderner Familien. Unter anderem mit 2 Kinderzimmern und zusätzlichem Zimmer, ideal als Homeoffice, Gäste- oder Hobbyraum.

Die nachhaltige Technik setzt auf eine Luft-Wasser-Wärmepumpe in Verbindung mit einer zentralen Lüftungsanlage mit Wärmerückgewinnung, Fußbodenheizung und dreifach verglasten Energiesparfenstern.

Die Vorbereitung für den späteren Einbau einer Photovoltaikanlage ist ebenfalls bereits berücksichtigt.

Familienfreundlicher Lebensraum zum Wohlfühlen in Weyhe – Leeste, Wacholderstraße.

Die begehrte Wohnlage im Ortsteil Leeste wird insbesondere durch die gute infrastrukturelle Anbindung gekennzeichnet. Auch die Möglichkeiten zur Freizeitgestaltung sind vielfältig.

Die Verkehrsanbindung ist als sehr gut zu bezeichnen. In die Bremer Innenstadt benötigt man mit dem Auto etwa 20 Minuten.

Der Bahnhof, der Weyher Marktplatz, Schule und vielfältige Einkaufsmöglichkeiten sind in wenigen Minuten erreichbar.

Die Grundstücke liegen an einer ruhigen Spielstraße mit Wendehammer.

Der eigene - nach Westen ausgerichtete - Garten mit größtmöglichen Abstand zur Nachbarschaft lädt zum Entspannen ein, eignet sich als Homeoffice im Freien und bietet gefahrlose Spielmöglichkeiten

für Kinder.

Folgen Sie uns auf instagram: creativ_bauplanung Hier finden Sie Informationen, aktuelle Bautenstände, Angebote und alles rund um unsere Tätigkeit!




« zurück zur Übersicht